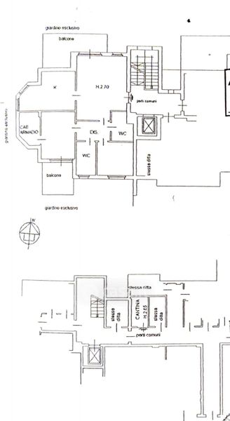
Appartamento in vendita Via Eugenio Montale 1, Cerro al Lambro
Salva
Casa.it
1/53
  • Street View
  • Map