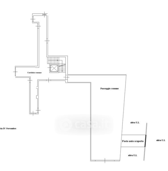
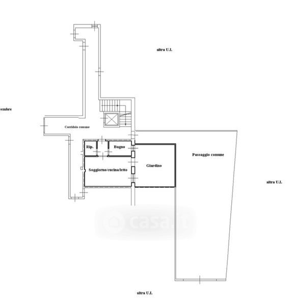
Appartamento in vendita Via IV Novembre 12, Cerro al Lambro
Salva
Casa.it
1/20
  • Street View
  • Map