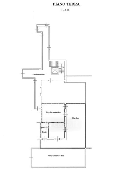
Appartamento in vendita novembre , Cerro al Lambro
Salva
Casa.it
1/27
  • Street View
  • Map