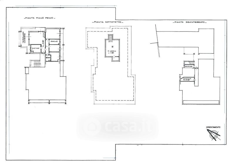
Appartamento in vendita Via Monsignor Cattaneo 12, Cerro Maggiore
Salva
Casa.it
1/32
  • Street View
  • Map