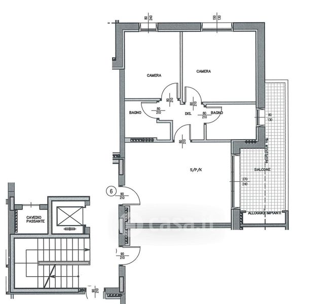
Appartamento in vendita Via Don Primo Mazzolari 16, Cerro Maggiore
Salva
Casa.it
1/13
  • Street View
  • Map