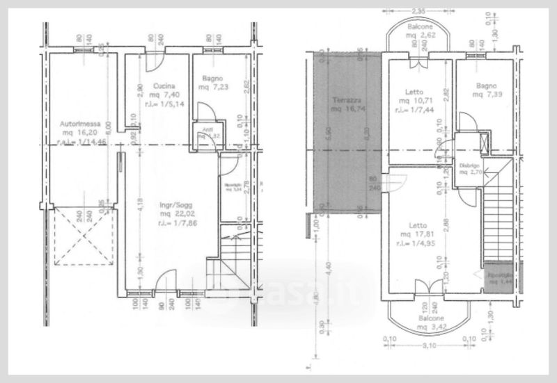
Appartamento in vendita Via XXV Aprile , Cerro Maggiore
Salva
Casa.it
1/32
  • Street View
  • Map