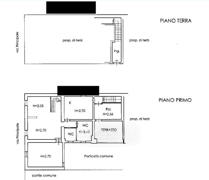
Appartamento in vendita Via Don Boschetti , Certosa di Pavia
Salva
Casa.it
1/33
  • Street View
  • Map