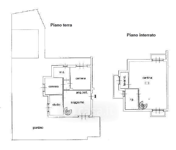
Appartamento in vendita Via Cesare Battisti 33, Cesano Maderno
Salva
Casa.it
1/27
  • Street View
  • Map