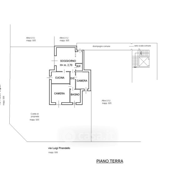
Appartamento in vendita Via Luigi Pirandello 11, Cesate
Salva
Casa.it
1/30
  • Street View
  • Map