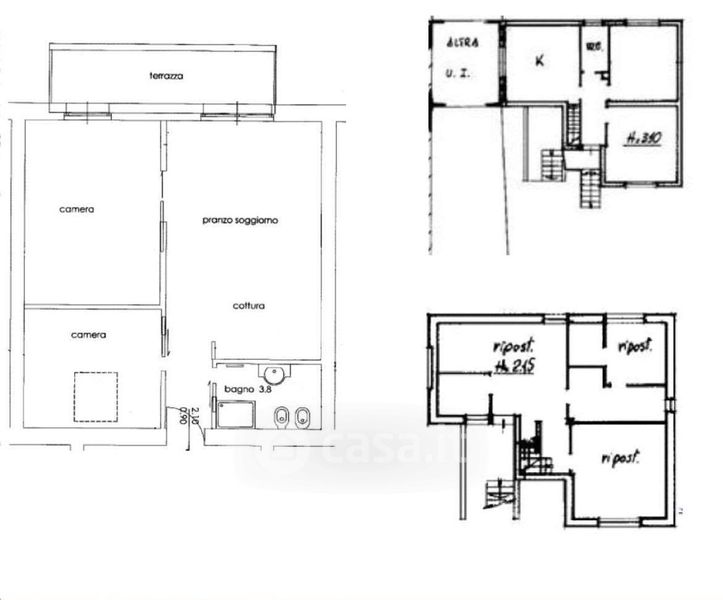
Appartamento in vendita Viale Pietro Cadeo 6, Chiari
Salva
Casa.it
1/29
  • Street View
  • Map