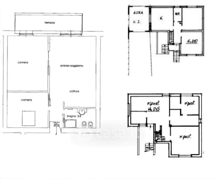
Appartamento in vendita Via Bacchetta 27 -21, Chieve
Salva
Casa.it
1/17
  • Street View
  • Map