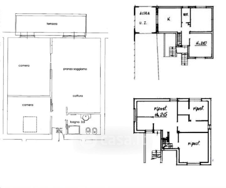
Appartamento in vendita Via Papa Giovanni XXIII 7, Chiuduno
Salva
Casa.it
1/29
  • Street View
  • Map