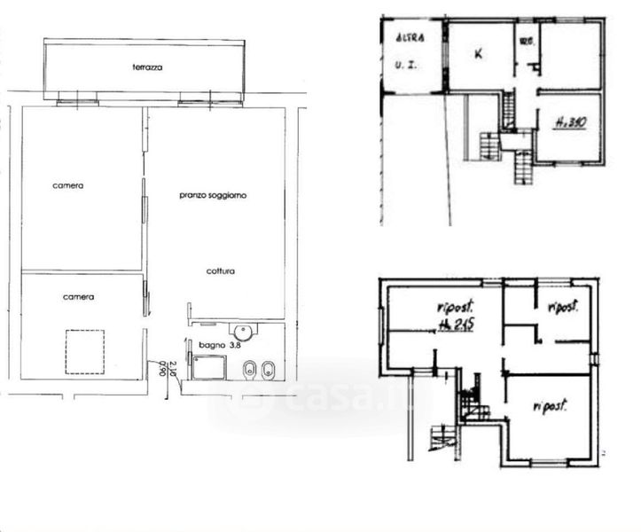
Appartamento in vendita Piazza G. Fadigati 3, Cicognolo
Salva
Casa.it
1/17
  • Street View
  • Map