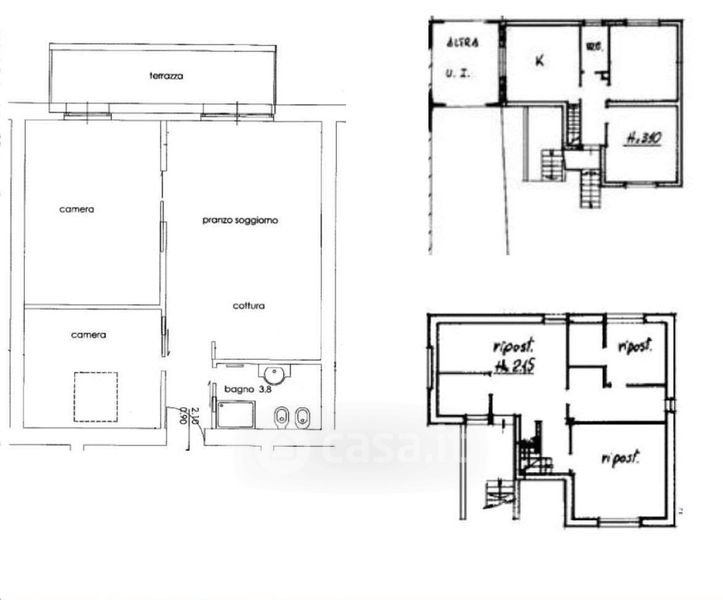
Appartamento in vendita Piazza Fratelli Cairoli 8, Codogno
Salva
Casa.it
1/17
  • Street View
  • Map