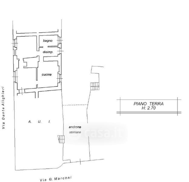
Appartamento in vendita Via Dante Alighieri , Cologno al Serio
Salva
Casa.it
1/21
  • Street View
  • Map