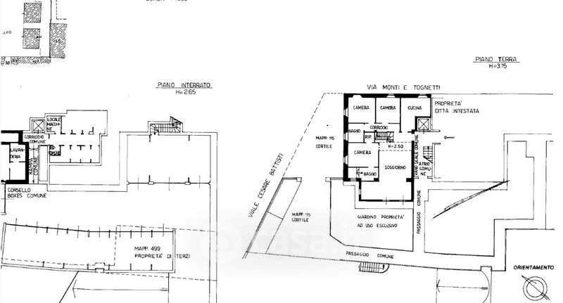
Appartamento in vendita Via Cesare Battisti 41, Cologno Monzese
Salva
Casa.it
1/13
  • Street View
  • Map