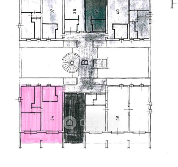
Appartamento in vendita Via Palestro , Como
Salva
Casa.it
1/26
  • Street View
  • Map