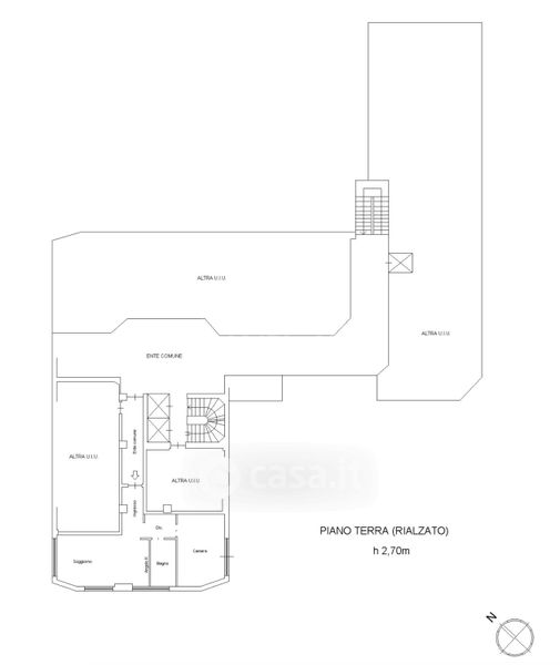
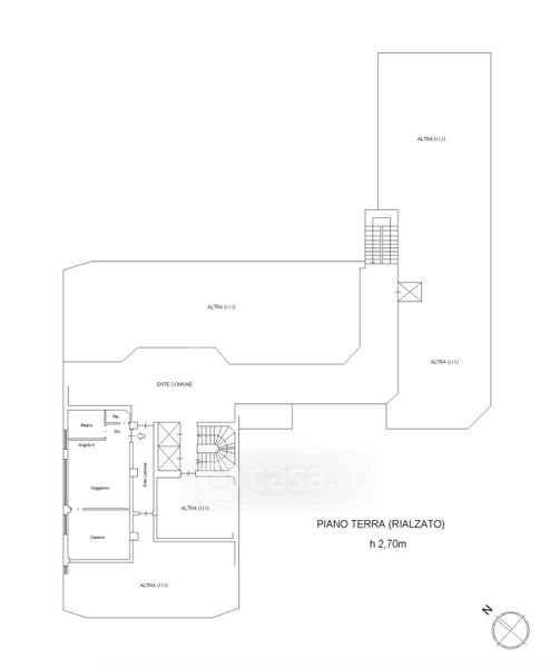
Appartamento in vendita Via Giuseppe Ferrari , Como
Salva
Casa.it
1/31
  • Street View
  • Map