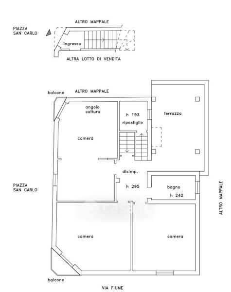
Appartamento in vendita Piazza San Carlo 3, Corbetta
Salva
Casa.it
1/17
  • Street View
  • Map