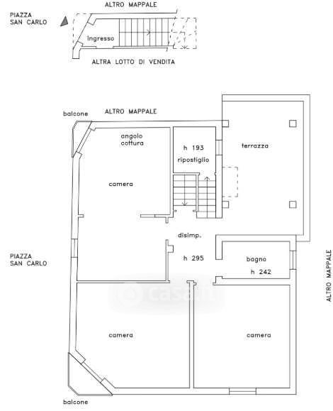
Appartamento in vendita Piazza San Carlo , Corbetta
Salva
Casa.it
1/23
  • Street View
  • Map