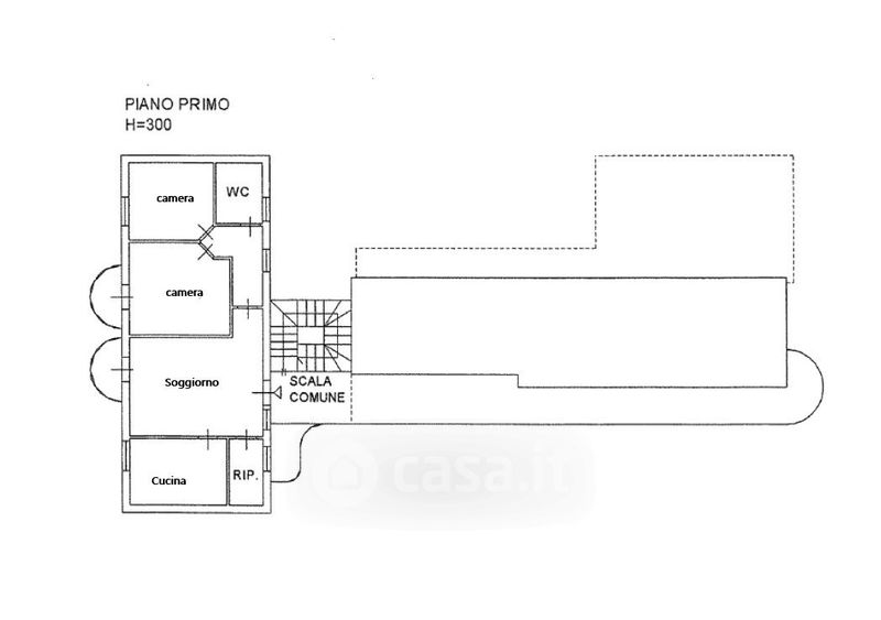
Appartamento in vendita Via Ghisallo 1 /b, Cornaredo
Salva
Casa.it
1/19
  • Street View
  • Map