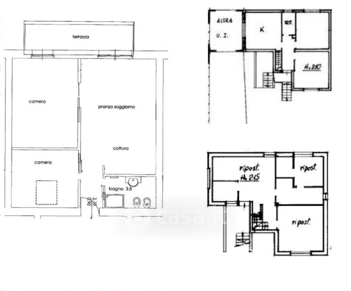
Appartamento in vendita Via Trieste 20, Covo
Salva
Casa.it
1/17
  • Street View
  • Map