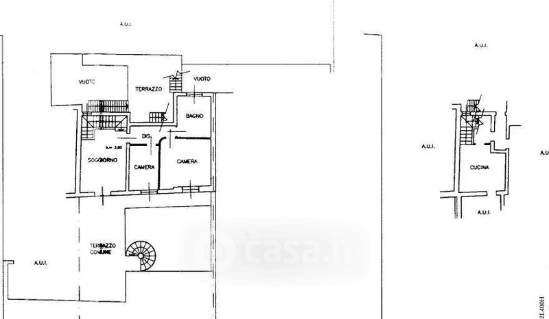
Appartamento in vendita Via Trieste 21, Covo
Salva
Casa.it
1/27
  • Street View
  • Map