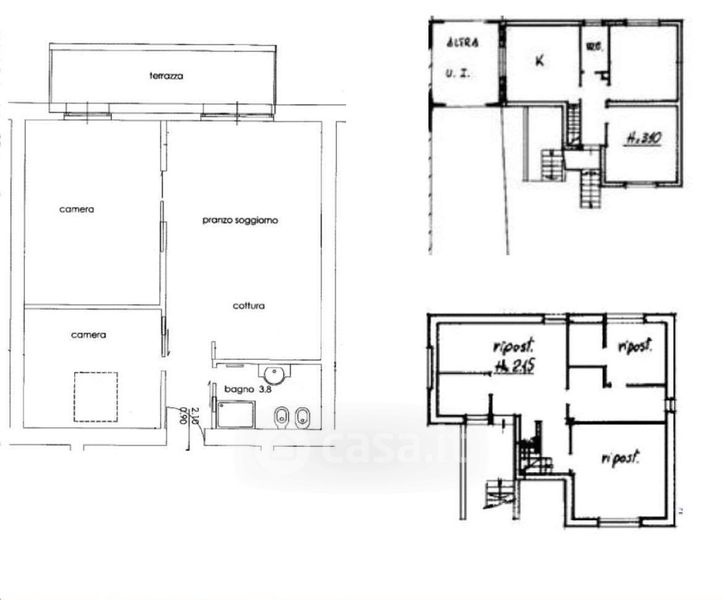
Appartamento in vendita Via Carlo Martini 13, Crema
Salva
Casa.it
1/17
  • Street View
  • Map