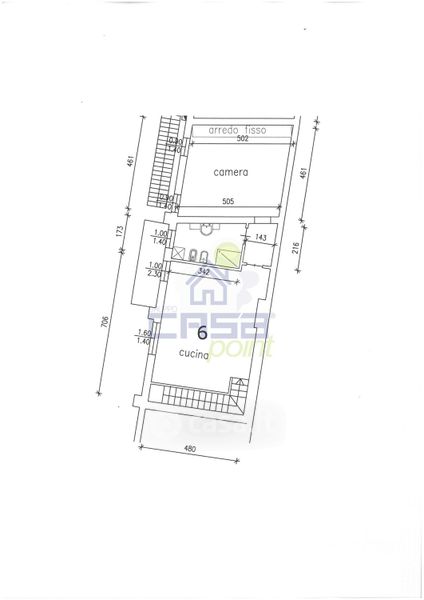
Appartamento in vendita Via Brescia , Crema
Salva
Casa.it
1/5
  • Street View
  • Map