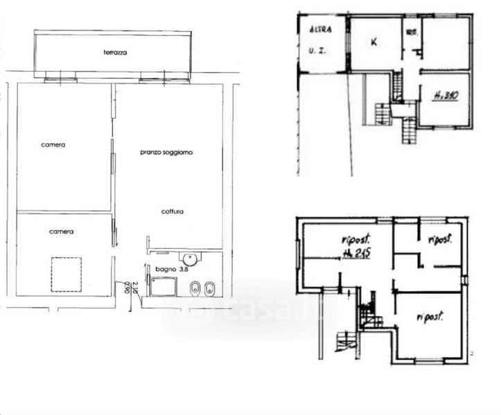
Appartamento in vendita Via Carlo Vittori 7, Cremona
Salva
Casa.it
1/17
  • Street View
  • Map