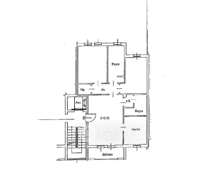
Appartamento in vendita Via Legione Ceccopieri 2 e, Cremona
Salva
Casa.it
1/24
  • Street View
  • Map