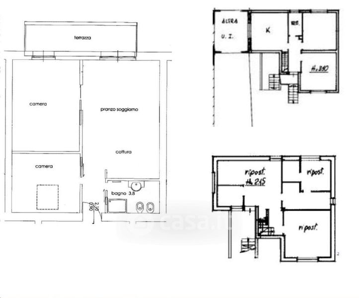
Appartamento in vendita Via dei Longobardi 6, Cremona
Salva
Casa.it
1/11
  • Street View
  • Map