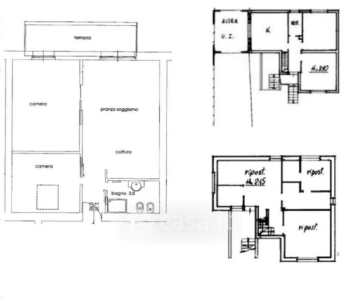
Appartamento in vendita Via Bergamo 125, Cremona
Salva
Casa.it
1/11
  • Street View
  • Map