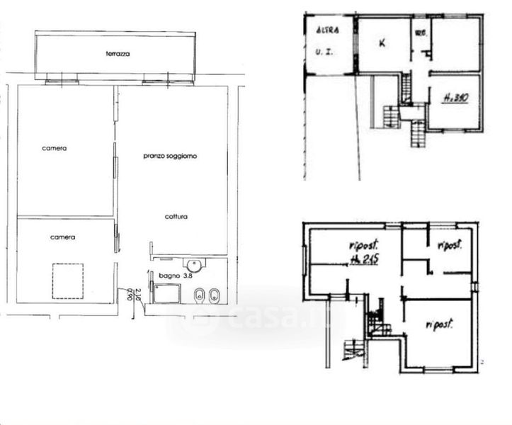
Appartamento in vendita Via degli Arenili 4, Cremona
Salva
Casa.it
1/13
  • Street View
  • Map