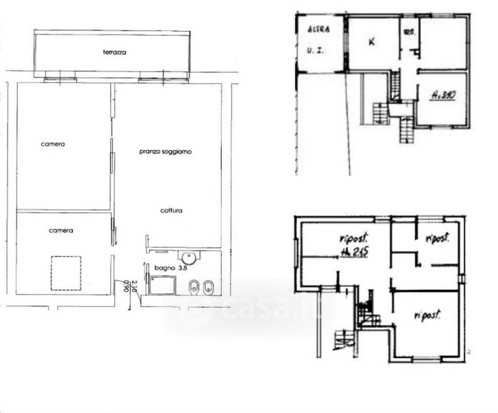
Appartamento in vendita Via XI Febbraio 62, Cremona
Salva
Casa.it
1/11
  • Street View
  • Map