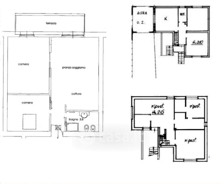
Appartamento in vendita Corso Vittorio Emanuele II 2, Cremona
Salva
Casa.it
1/13
  • Street View
  • Map