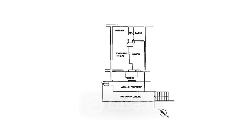
Appartamento in vendita Via Casamora 2, Cuasso al Monte
Salva
Casa.it
1/20
  • Street View
  • Map