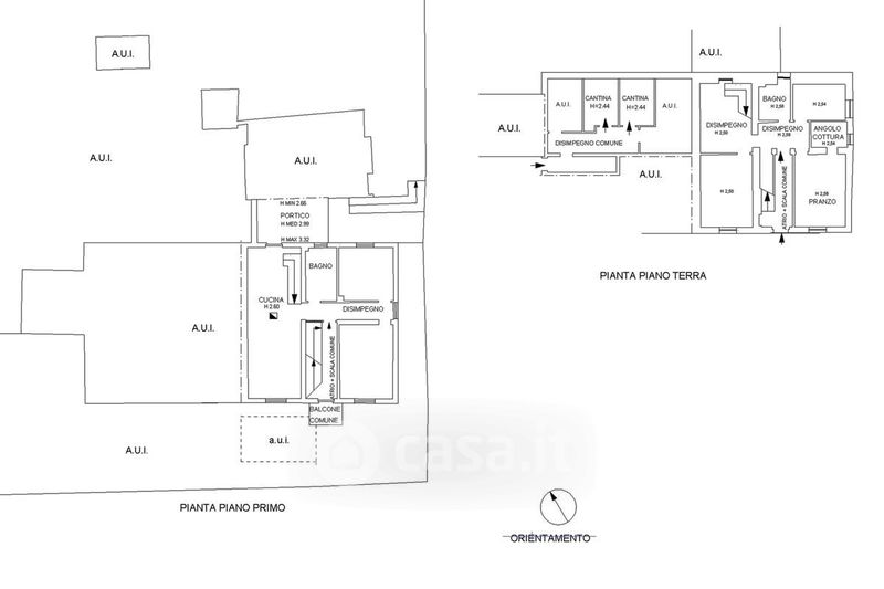
Appartamento in vendita Via dei Fabi 24, Cugliate-Fabiasco
Salva
Casa.it
1/43
  • Street View
  • Map