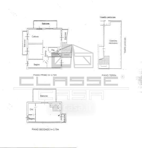
Appartamento in vendita Via L. Cherubini 12, Dalmine
Salva
Casa.it
1/28
  • Street View
  • Map