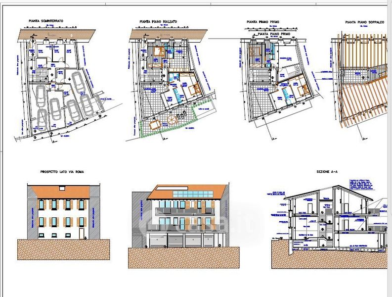
Appartamento in vendita Via Roma , Darfo Boario Terme
Salva
Casa.it
1/5
  • Street View
  • Map