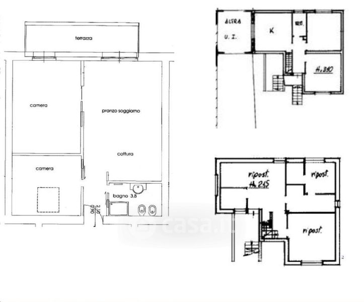
Appartamento in vendita Via Camillo Golgi 13, Darfo Boario Terme
Salva
Casa.it
1/31
  • Street View
  • Map