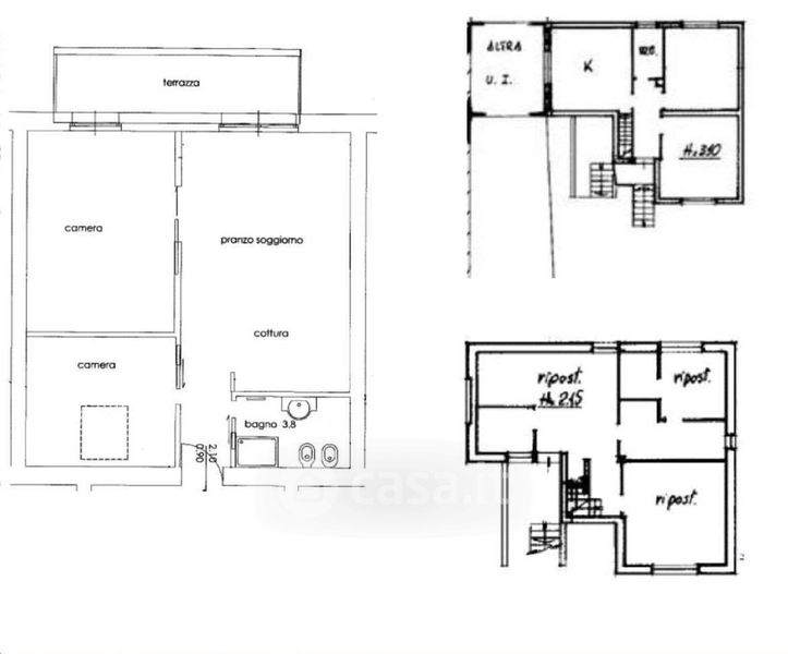
Appartamento in vendita Via Giuseppe Mazzini 102, Darfo Boario Terme
Salva
Casa.it
1/30
  • Street View
  • Map