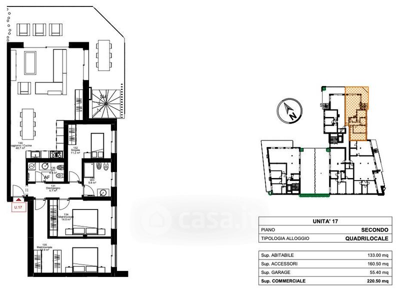
Appartamento in vendita Via Mezzocolle , Desenzano del Garda
Salva
Casa.it
1/24
  • Street View
  • Map