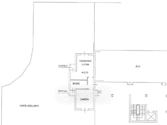
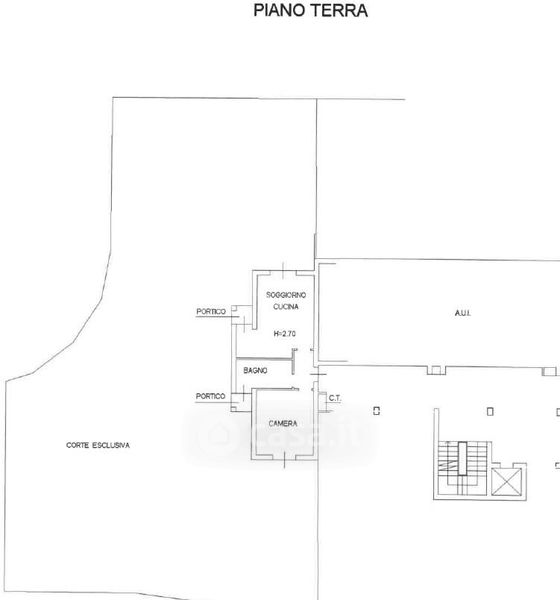
Appartamento in vendita Via Alessandria d'Egitto , Desenzano del Garda
Salva
Casa.it
1/22
  • Street View
  • Map