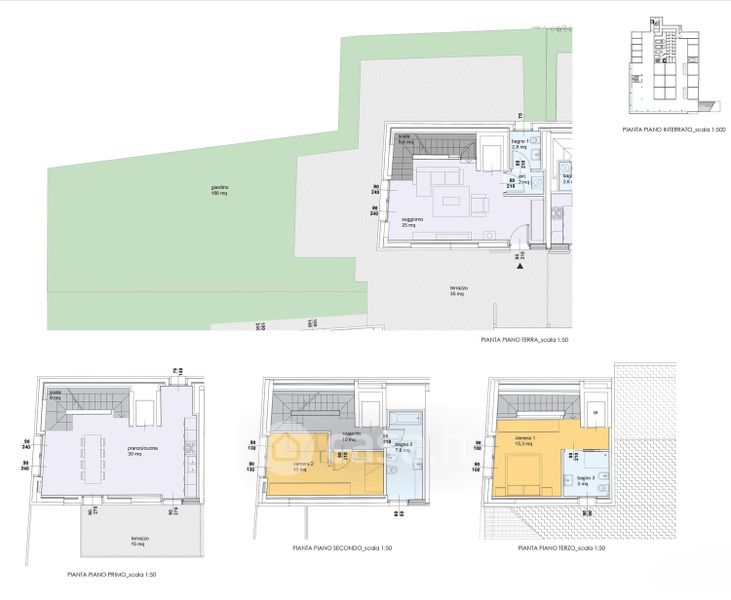
Appartamento in vendita Via Leonardo Da Vinci , Erba
Salva
Casa.it
1/8
  • Street View
  • Map