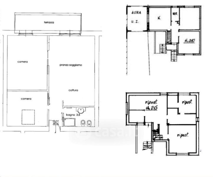
Appartamento in vendita Via Novelle 37, Esine
Salva
Casa.it
1/31
  • Street View
  • Map