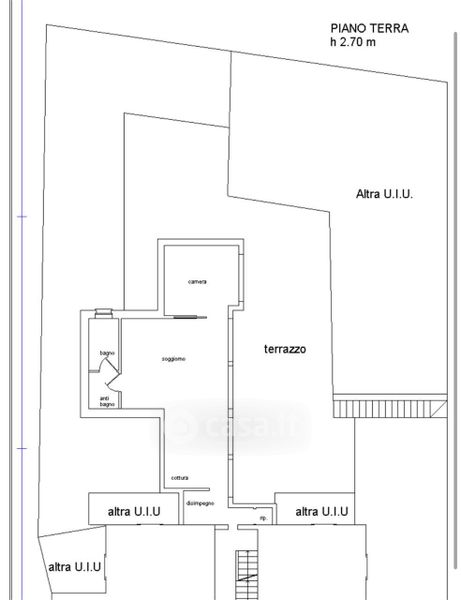
Appartamento in vendita Via IV Novembre 1, Faloppio
Salva
Casa.it
1/10
  • Street View
  • Map