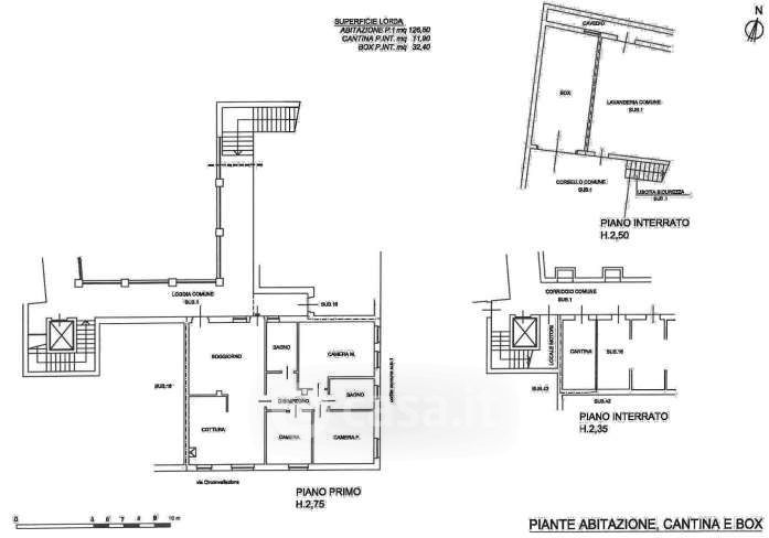
Appartamento in vendita Via Longobardica 22, Fara Gera d'Adda
Salva
Casa.it
1/6
  • Street View
  • Map