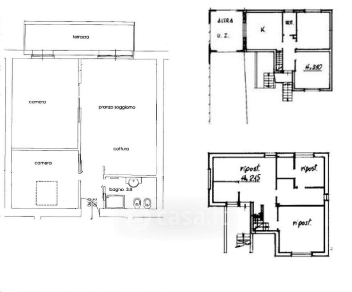
Appartamento in vendita Via Giuseppe Zanardelli 3, Fiesse
Salva
Casa.it
1/17
  • Street View
  • Map