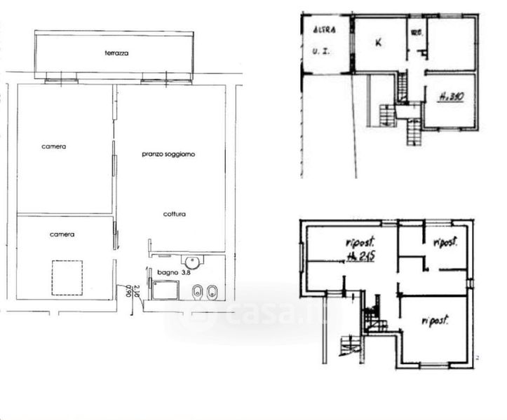
Appartamento in vendita Via Valle Fiorita 7, Gardone Riviera
Salva
Casa.it
1/18
  • Street View
  • Map