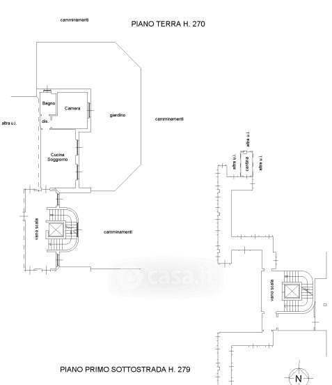
Appartamento in vendita Via Marco Biagi 2, Gerenzano
Salva
Casa.it
1/11
  • Street View
  • Map