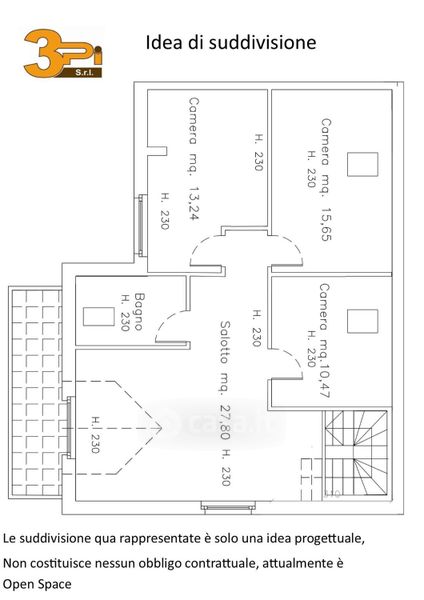
Appartamento in vendita Via Sondrio 39, Gessate
Salva
Casa.it
1/35
  • Street View
  • Map