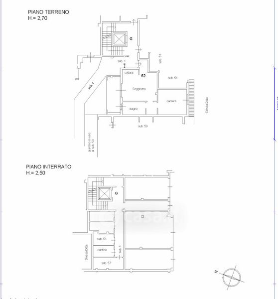
Appartamento in vendita Via Como 29, Gessate
Salva
Casa.it
1/34
  • Street View
  • Map