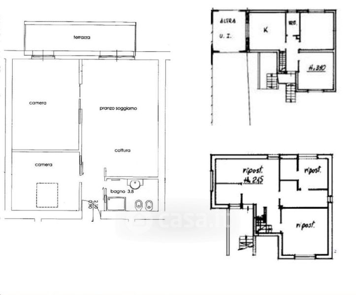
Appartamento in vendita Via X Giornate 25, Ghedi
Salva
Casa.it
1/31
  • Street View
  • Map